THE BIG TIMBER
THE BIG TIMBER
DESCRIPTION
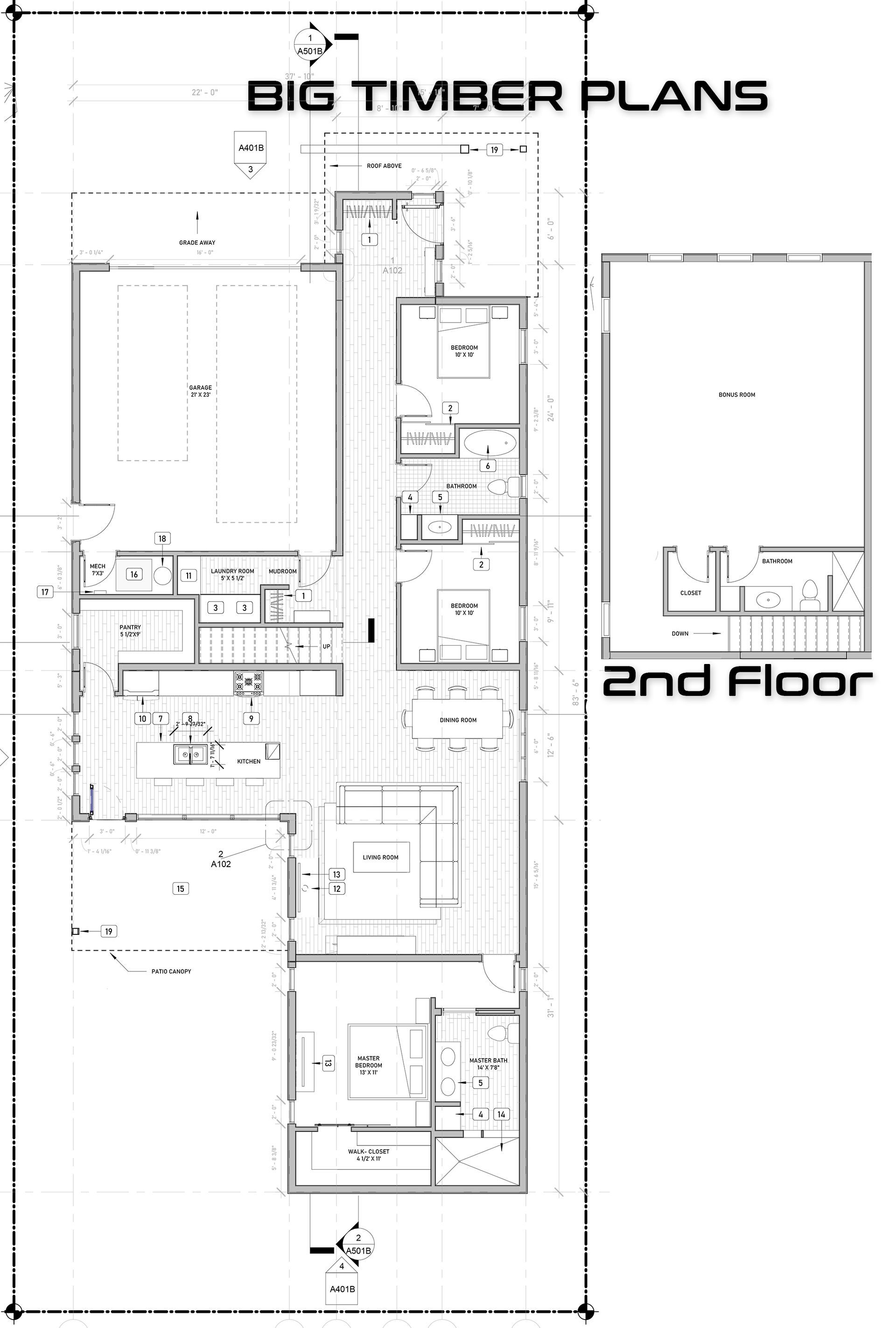
This stunning and beautifully designed home boasts oversized rooms that create an inviting and spacious atmosphere, complemented by impressively high ceilings that enhance the feeling of openness. The gourmet kitchen is a chef's dream, perfect for hosting large family gatherings, featuring a generous center island that provides ample workspace and a convenient walk-out to the COVERED garden AREA, ideal for entertaining or enjoying quiet mornings with coffee. The master retreat offers a tranquil sanctuary, highlighted by VAULTED CEILINGS and a luxurious WALK-IN CLOSET designed for all your storage needs. Additionally, this property includes a double garage that provides easy access to the house with no stairs to navigate. The OPEN LAYOUT presents a seamless flow between the gourmet kitchen and the great room, with VAULTED CEILINGS enhancing the bright and airy feel of the space. Throughout the remainder of your new home, 9-foot ceilings create an elegant and spacious environment that you and your family will appreciate.

- Multi-car garage
- WIFI THERMOSTAT
- COVERED BACK PATIO
- COVERED FRONT PATIO
- VAULTED CEILINGS THROUGHOUT
- 4 BEDROOMS
- 3 BATHROOMS
- WALK IN PANTry
- ELECTRIC FIREPLACE
- GREEN HOME
- OPEN Concept
- Private back Patio
- COMPOSITE ROOF
- Air conditioning Included
- HIGH EFF HOT WATER TANK
- HIGH EFF FURNACE
- APPLIANCES
- Walk in master closet


